
Durch den Verzicht auf feste Einbauten ist der Große Saal ein wahrer Verwandlungskünstler. Egal ob Konzert, Messe oder Sport - der Große Saal bietet immer den passenden Rahmen. Eine hervorragende Akustik zeichnet den Saal als hochwertige Konzert-Location aus.
Bei Tagungen und Kongressen bietet der Große Saal ideale Voraussetzungen für Plenarveranstaltungen mit unterschiedlichsten Einrichtungsvarianten. Eine variable Zuschauertribüne sowie zwei Sporttribünen garantieren bei bestuhlten Veranstaltungen beste Sichtverhältnisse bis zur letzten Reihe. Für Sportveranstaltungen steht ein flächenelastischer Sportboden zur Verfügung.
Die Balkone sind mit fest eingebautem Polstergestühl ausgestattet und können ganz oder teilweise durch Vorhänge verschlossen werden. Hoch variabel ist auch die Bühne, sowohl bezüglich ihrer Fläche als auch ihrer Anordnung im Saal. Sogar abgestufte Varianten sind problemlos realisierbar.
| Größe in qm | 2.100 |
| Personenanzahl | 1.000 – 4.300 |
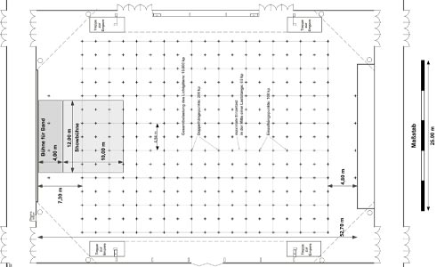
| Raummaße in m (Länge x Breite) | 53 x 40 |
| Deckenhöhe in m | 7,65 – 8,3 |
| Personenanzahl unbestuhlt | 4.302 |
| Personenanzahl Reihenbestuhlung | 2.756 – 3.002 |
| Personenanzahl Bankettbestuhlung | 1.328 |
| Personenanzahl Parlamentbestuhlung | 1.016 |
| Personenanzahl Besprechung | – |
| Personenanzahl Seminar | – |
| Tageslicht | nein |
In der Eberthalle setzen wir auch in Sachen Technik auf Flexibilität. Fest eingebaut ist lediglich eine Grundausstattung zur Ausleuchtung der Bühne und für Sprachübertragung. Alles Weitere bauen wir individuell nach Ihren Wünschen. Die trockene Akustik des Saals ermöglicht den Einsatz der exakt passenden Technik für Ihre Veranstaltung – vom Klassik-Konzert bis zum Pop-Act.
Selbstverständlich haben Sie auch die Möglichkeit, Ihr eigenes Equipment für Ton und Licht mitzubringen. Auf Wunsch unterstützen wir Sie mit dem erforderlichen Ground-Support und Traversensystem.
Für große szenische Aufführungen, Fernsehübertragungen oder Partys ist der Große Saal mit einem Lichtgitter ausgestattet, das bei gleichmäßiger Lastverteilung bis zu 19 t trägt. Energieeffiziente LED-Technik führt zudem nachhaltig und Ressourcen schonend zu Kostensenkungen im Energieverbrauch – ein Vorteil, der nicht zuletzt auch zu Einsparungen im Budget der Veranstalter führt. Sämtliche Leuchtkörper sind mit Kaltlicht, etwa für Fernsehübertragungen von Sportveranstaltungen, aber auch mit Warmlicht für alle anderen Veranstaltungen ausgerüstet. Dimmer ermöglichen variabel differenzierbare Helligkeiten.
Beim Tausch der Leuchten wurde zugleich der Schallschutz in der Hallendecke erneuert. Auch die Hallenakustik erfährt hierdurch eine deutlich wahrnehmbare Verbesseru
Auch für den Internetzugang ist die Eberthalle auf dem neuesten Stand. Sie verfügt über einen eigenständigen Glasfaser-Zugang, der hohe Übertragungsgeschwindigkeiten per LAN und WLAN ermöglicht.

Lageplan
Gesamtplan
Unbestuhlt
Musterausstellungsplan
Lichtgitterplan
Lichtgitterplan mit Bühne
Reihenbestuhlung: Haupttribüne mit Bühnentiefe von 8,00m
Reihenbestuhlung: Haupttribüne mit Bühnentiefe von 9,00m
Reihenbestuhlung: Haupttribüne mit Bühnentiefe von 10,00m
Reihenbestuhlung: Haupttribüne mit Bühnentiefe von 10,00m mit Lichtgitter
Reihenbestuhlung: Haupttribüne mit Bühnentiefe von 11,00m
Reihenbestuhlung: Haupttribüne mit Bühnentiefe von 12,00m
Reihenbestuhlung: Haupttribüne Teilbestuhlung
Reihenbestuhlung: Gemischte Sonderbestuhlung
Reihenbestuhlung mit verkürztem Parkett
Sportbestuhlung: Handball
Sportbestuhlung: Ringen & Boxen
Sportbestuhlung: Tanzturnier
Sportbestuhlung: Szeneflächen Revue
Parlamentarische Bestuhlung maximal
Parlamentarische Bestuhlung: Tagung & Kundgebung
Mischbestuhlung parlamentarisch
Parlamentarische Bestuhlung: Tagung mit begleitender Ausstellung
Bankett für Ball & Gala
Bankett für Ball & Gala Version 2
Bankett maximal
Partyeinrichtung
Übersichtsplan Kultur- und Sportevents und Tagungen
Plan für Kulturevents